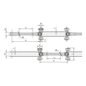
La cadena transportadora doble articulada es el principal componente de tracción de la cinta transportadora suspendida con guía cerrada ligera.